Brand, architecture + marketing.
Early in 2020, the Kentish Council approved Our Cradle for development at Cradle Mountain.
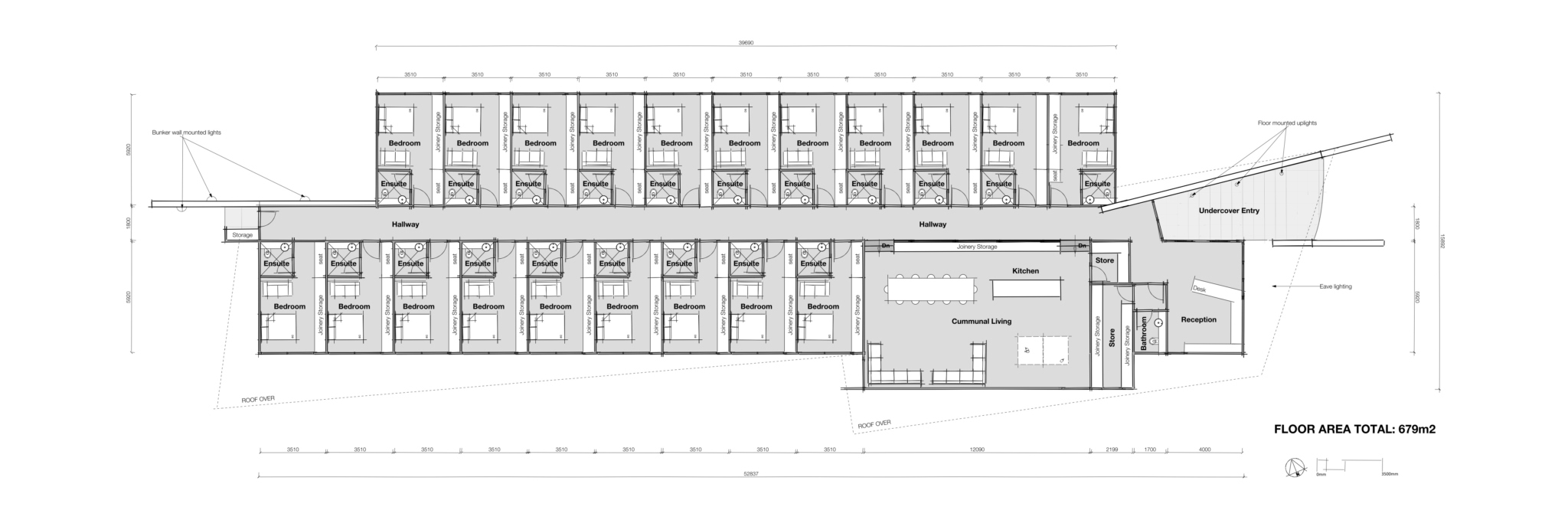
The boutique accommodation development, offering 62 luxury rooms, will be tucked away on the edge of the Cradle Mountain National Park area.
Our Cradle welcomes visitors to gaze into the heart of the World Heritage Area and offers an intimate view of Tasmania’s crowning jewel, Cradle Mountain. With premium Architect designed accommodation suites, private walking tracks around the property and stargazing facilities, this development will set a new industry standard for luxury accommodation in Tasmania.
Developer Simon McDermott explains why Our Cradle is so unique.
“Our Cradle offers guests an unparalleled and unobstructed view from their suite or apartment of Cradle Mountain itself – a view that can only be enjoyed from current viewing platforms. Each Leisure Suite and Studio Apartment is designed to nestle into the lie of the land and complement the existing landscape” he says.
We are excited to see the project progress to the next stage. Our Cradle will contribute greatly to tourist numbers and employment in the local areas, as well as continue to put Tasmania on the map for premium tourism experiences.
Completion of the development is expected in 2020.









Location
- Cradle Mountain, Tasmania
Project Team
- Sam Haberle
- Phil Beeston
- Josh Upston
- Jonathan Buist
- Steve Greenwood
- Rain Lyall
Related posts
Get Started
Let's work together...
Interested in how we can help your next project be next level wonderful? Whether you’re looking at building your dream home (or renovating your existing one), have a business development in mind, or you’re in need of some help with brand and marketing (and all that this encompasses), let’s talk about how we can work together to create some magic!